2 к. кв-ра, г. Речица, ул. Наумова, д. 18
|
Цена: 83 242 бел. руб.
29 000 у.е.
-->
Цена за кв.м: 1 771 бел. руб. Эквивалент цены (справочно) по курсу НБ РБ: За объект: 29 000 дол. США За 1 кв.м. 617 дол. США Все расчеты по сделке в соответствии с законодательством производятся в белорусских рублях
Объект № 99908
Предлагаем к продаже 2-х комнатную квартиру, расположенную по ул. Наумова 18 в г. Речица. К дому влечёт его месторасположение в центральной части города. В шаговой доступности набережная р. Днепр. Хорошо развита торговая инфраструктура и логистика транспорта, которая позволяет добраться в любую точку города. Рядом также находятся: гимназия, школа, бассейн, банки, аптеки. Будущий хозяин сможет воспользоваться всеми привелегиями проживания в центральной части города. Приглашаем на просмотр. По всем вопросам обращайтесь к ответственному сотруднику: НИКИТИНА Елена Сергеевна +375 (44) 511-22-11Объект под №: 99908
По вопросам обращайтесь:
Администратор Admin |
Параметры
Описание
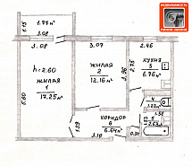
Планировка
На карте
Связаться со специалистом
Количество комнат (всего/изол.) — 2/2
Предлагаем к продаже 2-х комнатную квартиру, расположенную по ул. Наумова 18 в г. Речица.
К дому влечёт его месторасположение в центральной части города. В шаговой доступности набережная р. Днепр. Хорошо развита торговая инфраструктура и логистика транспорта, которая позволяет добраться в любую точку города. Рядом также находятся: гимназия, школа, бассейн, банки, аптеки. Будущий хозяин сможет воспользоваться всеми привелегиями проживания в центральной части города. Приглашаем на просмотр. Заявка на просмотр |
|||








+375 (44) 511-22-11
Администратор Admin
