3 к. кв-ра, г. Речица, ул. Советская, д. 102
|
Цена: 73 753 бел. руб.
25 000 у.е.
-->
Цена за кв.м: 1 298 бел. руб. Эквивалент цены (справочно) по курсу НБ РБ: За объект: 25 000 дол. США За 1 кв.м. 440 дол. США Все расчеты по сделке в соответствии с законодательством производятся в белорусских рублях
Объект № 99988
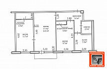
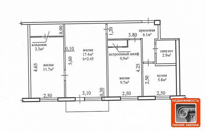
Предлагаем к продаже трёхкомнатную квартиру, расположенную по ул. Советская, 102 в городе Речица Гомельской области. Отличное месторасположение дома, центральная часть города. Окружающий район обладает развитой инфраструктурой. Остановки общественного транспорта. - стандартная планировка квартиры площадью 57 кв.м; - 4 этаж пятиэтажного панельного жилого дома 1965 г.п.; - жилое состояние квартиры, без ремонта по современным стандартам; - окна заменены на ПВХ стеклопакеты, кроме одного окна; - в квартире предусмотрена функциональная кладовая в жилой комнате; - наличие застекленного балкона; - квартира не угловая; - санузел совмещенный, обложен керамической плиткой; - установлены счётчики воды, света, газа; - обстановка квартиры и мебель обсуждается при продаже; - имеется собственное подвальное помещение; - капремонт года в многоквартирном жилом доме произведен в 2007 году; - двор обустроен стояночными местами. Квартира не подвергалась перепланировкам, имеется технический паспорт. Обмен на иную недвижимость не рассматриваем. По всем вопросам обращайтесь к ответственному сотруднику: ВОЛЬШТЕЙН Олег Маркович +375 (44) 511-22-11Объект под №: 99988
По вопросам обращайтесь:
Администратор Admin |
Параметры
Описание
Планировка
На карте
Связаться со специалистом
Количество комнат (всего/изол.) — 3/2
Предлагаем к продаже трёхкомнатную квартиру, расположенную по ул. Советская, 102 в городе Речица Гомельской области.
Отличное месторасположение дома, центральная часть города. Окружающий район обладает развитой инфраструктурой. Остановки общественного транспорта. - стандартная планировка квартиры площадью 57 кв.м; - 4 этаж пятиэтажного панельного жилого дома 1965 г.п.; - жилое состояние квартиры, без ремонта по современным стандартам; - окна заменены на ПВХ стеклопакеты, кроме одного окна; - в квартире предусмотрена функциональная кладовая в жилой комнате; - наличие застекленного балкона; - квартира не угловая; - санузел совмещенный, обложен керамической плиткой; - установлены счётчики воды, света, газа; - обстановка квартиры и мебель обсуждается при продаже; - имеется собственное подвальное помещение; - капремонт года в многоквартирном жилом доме произведен в 2007 году; - двор обустроен стояночными местами. Квартира не подвергалась перепланировкам, имеется технический паспорт. Обмен на иную недвижимость не рассматриваем. Заявка на просмотр |
|||








+375 (44) 511-22-11
Администратор Admin
