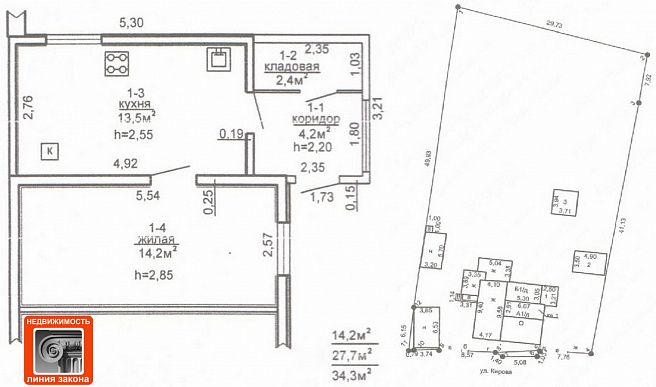
Квартира в жилом доме, г. Речица, ул. Кирова
|
Цена: 31 914 бел. руб.
10 800 у.е.
-->
Цена за кв.м: 1 152 бел. руб. Эквивалент цены (справочно) по курсу НБ РБ: За объект: 10 800 дол. США За 1 кв.м. 390 дол. США Все расчеты по сделке в соответствии с законодательством производятся в белорусских рублях
Объект № 99844
Есть сарай, погреб. Приглашаем на просмотр. По всем вопросам обращайтесь к ответственному сотруднику: ТРАВИН Евгений Васильевич +375(44)511-22-11Объект под №: 99844
По вопросам обращайтесь:
Администратор Admin |
Параметры
Описание
Фото
Планировка
На карте
Связаться со специалистом
Часть дома.
Количество комнат (всего/изол.) — 1/1
Есть сарай, погреб. Приглашаем на просмотр.
Заявка на просмотр |
|||








+375(44)511-22-11
Администратор Admin
